Студия, 28.20 м², 22 из 27 эт.
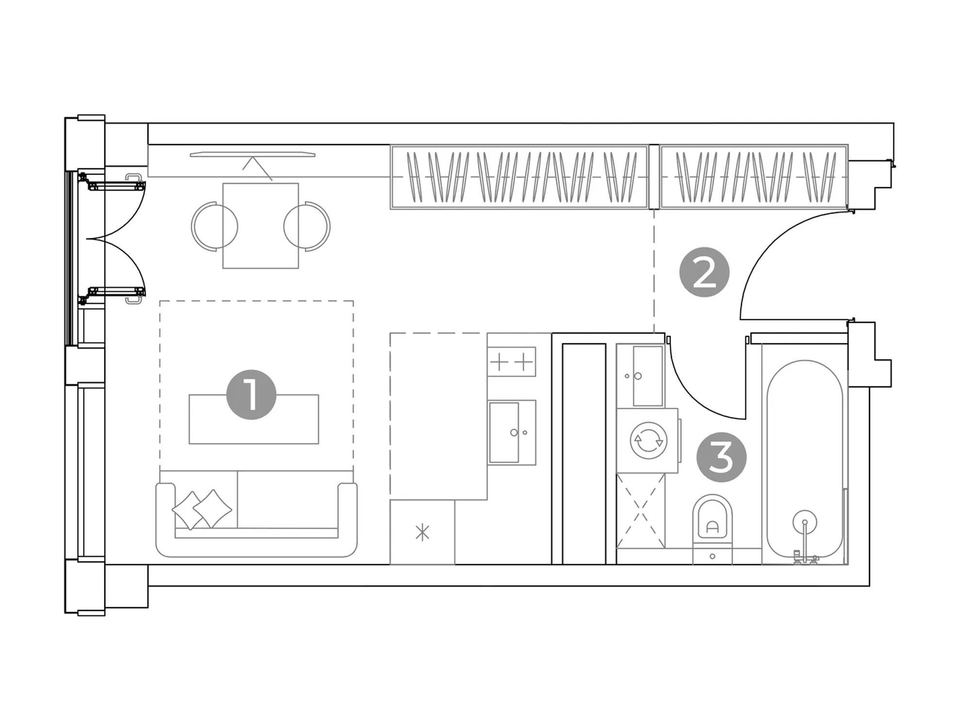
Планировка
План этажа
Ход строительства
6 похожих планировок
На других этажах
Дешевле
Большей площади
Меньшей площади

Ипотека
от 164 030 ₽/мес.

Ипотека
от 167 340 ₽/мес.

Ипотека
от 147 467 ₽/мес.

Ипотека
от 147 613 ₽/мес.