Цена за м²
236 400 ₽ - 426 100 ₽
Площадь
284.4 - 512.7 м²
Сдача
есть сданные
9 квартир от застройщика Маслово Forest Club
Бесплатно подберём новостройку за один звонок
Выгодные акции, льготные ставки и минимальный первоначальный взнос


















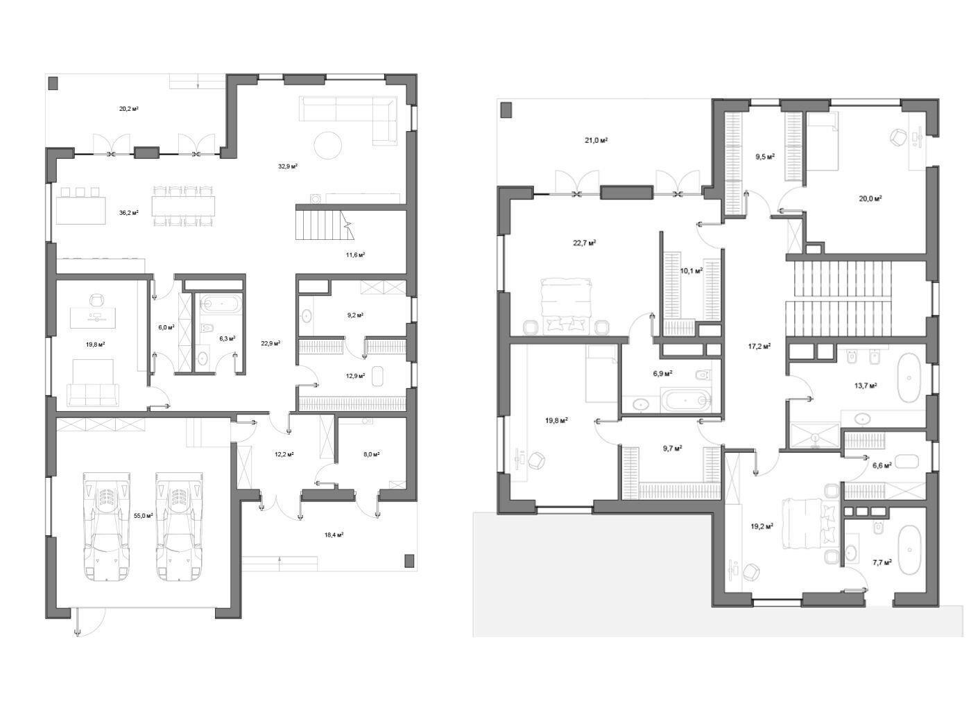
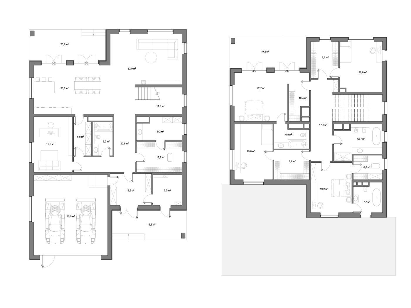
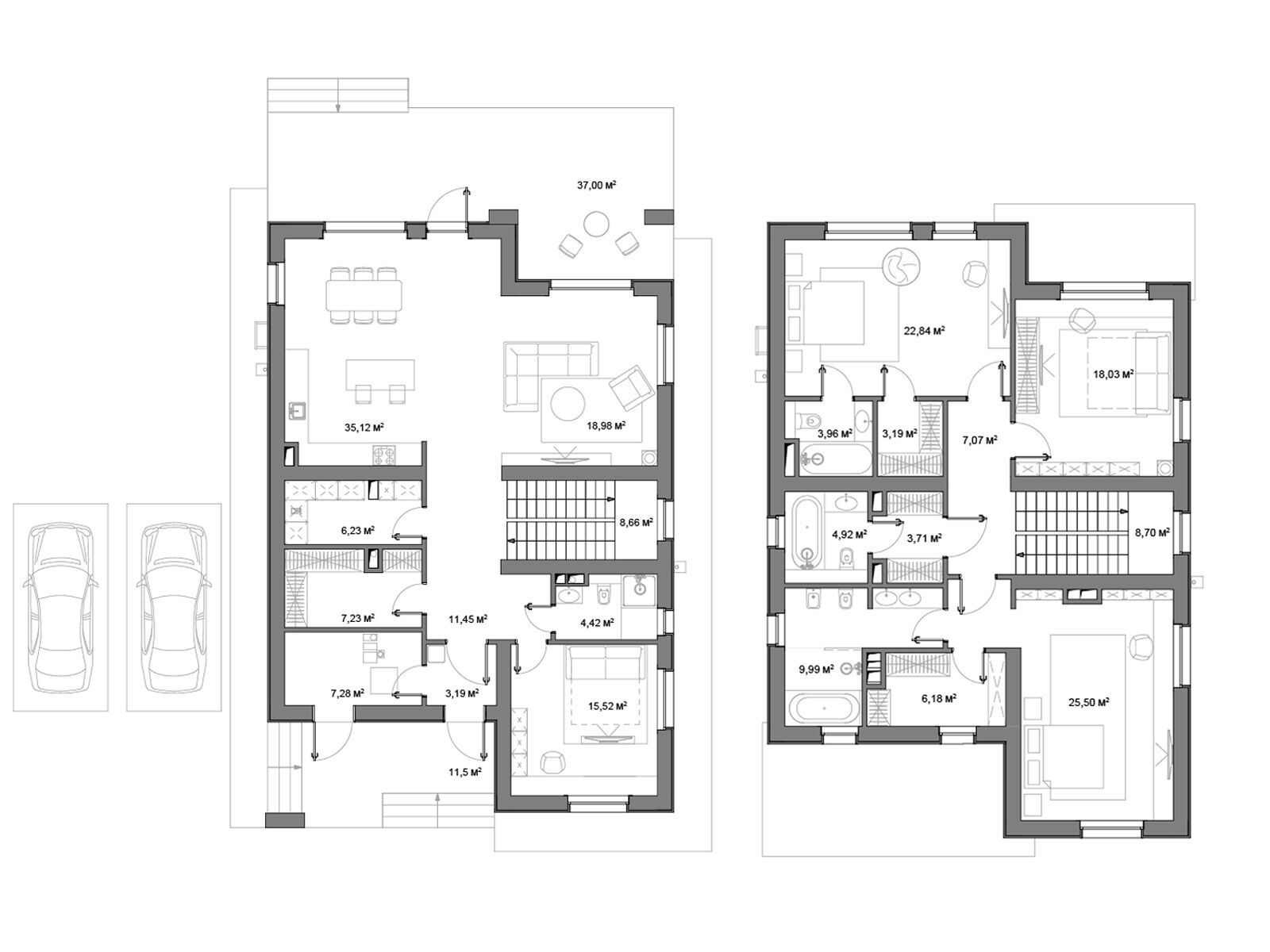
Коттеджный поселок «Маслово Forest Club» (Маслово Форест Клаб) — это премиальный проект компании «Hals Development», расположенный в Одинцовском районе, недалеко от Николиной Горы. Коттеджи выполнены в европейском скандинавском стиле с использованием керамического кирпича ручной формовки и натуральной древесины.
Все коттеджи полностью готовы к проживанию и оснащены всеми необходимыми коммуникациями и отделкой от застройщика. В каждом доме есть несколько спален, личные и гостевые санузлы, прачечные помещения, просторные мастер-спальни с отдельными душевыми и гардеробными комнатами. На нижних этажах расположены собственные котельные.
Обеденные зоны оборудованы премиальными кухонными гарнитурами и бытовой техникой, а в зоне отдыха можно установить дровяной камин. Также в коттеджах установлены системы кондиционирования и вентиляции, тёплый пол, встроенные душевые гарнитуры и смесители, а сантехника представлена европейскими брендами.
Максим
Я решил переехать за город и искал подходящий комплекс. Переплат нет, срок — 2 года, вполне лояльные условия. Переезд планировали давно, и вот наконец-то дом сдали в феврале, мы получили ключи. Очень рад, что выбрал этот коттедж, всё соответствует нашим ожиданиям. Делаем ремонт.

Февраль,2026

Январь,2026

Июль,2025

Июнь,2025

Май,2025

Апрель,2025

Март,2025

Январь,2025

Декабрь,2024

Ноябрь,2024

Октябрь,2024
Застройщик

Галс-Девелопмент
Документы Маслово Forest Club
Проектная документация на сайте наш.дом.рф
Сдача в II кв. 2028, есть сданные
335 квартир
Быстрый просмотрОт 5,6 до 18,3 млн ₽
5 571 300 ₽ — 18 278 400 ₽
от 26 737 ₽/мес.
Московская область, г.о. Ленинский, пос. Боброво
Бульвар Дмитрия Донского
35 минут
Застройщик «ПИК»
Сдача в I кв. 2027, есть сданные
661 квартира
Быстрый просмотрОт 4,7 до 14,9 млн ₽
4 747 000 ₽ — 14 862 000 ₽
от 44 685 ₽/мес.
Московская область, Щелковский район, г.п. Монино
Щелковская
65 минут
Застройщик «Аверус»
Сдача в IV кв. 2026, строится
381 квартира
Быстрый просмотрОт 8,4 до 28,8 млн ₽
8 366 000 ₽ — 28 840 500 ₽
от 35 111 ₽/мес.
Московская область, г.о. Красногорск, с.п. Ильинское
Павшино
35 минут
Застройщик «Яркий Рига»
Сдача в II кв. 2027, есть сданные
276 квартир
Быстрый просмотрОт 7,4 до 27,8 млн ₽
7 424 200 ₽ — 27 768 900 ₽
от 31 158 ₽/мес.
Московская область, г.о. Ленинский, г.п. Горки Ленинские
Домодедовская
45 минут
Застройщик «3-RED»
Сдан
171 квартира
Быстрый просмотрОт 6,8 до 13,5 млн ₽
6 799 700 ₽ — 13 490 200 ₽
от 28 538 ₽/мес.
Московская область, Пушкинский район, Пушкино
Ростокино
35 минут
Застройщик «РосЕвроСити»
Сдан
115 квартир
Быстрый просмотрОт 15,7 до 36,8 млн ₽
15 674 000 ₽ — 36 800 200 ₽
от 149 903 ₽/мес.
Московская область, г.о. Красногорск, Красногорск
Опалиха
13 минут
Застройщик «Сити21»