Цена за м²
377 300 ₽ - 771 300 ₽
Площадь
21.6 - 86.7 м²
Сдача
строится
290 квартир от застройщика НАЗАРÉ
Бесплатно подберём новостройку за один звонок
Выгодные акции, льготные ставки и минимальный первоначальный взнос






















































Район Богородское считается одним из самых зеленых участков столицы. Здесь располагается природный национальный лесопарк «Лосиный остров», который всего в 10 минутах от нового комплекса. В непосредственной близости находятся и другие известные городские парки, такие как «Сокольники» и «Измайлово». Центр Москвы можно быстро и удобно достичь как на автомобиле, так и на общественном транспорте. Рядом есть станция «Бульвар Рокоссовского» Московского центрального кольца и станция метро Сокольнической линии.
Новый жилой комплекс, который станет самым высоким в Богородском, будет состоять из шести небоскребов, высота которых варьируется от 24 до 43 этажей, а общая площадь составит 139 тысяч квадратных метров. Архитектурное бюро СПИЧ создало уникальные фасады для каждого из корпусов, отличающихся выразительными силуэтами и оригинальными формами с ломаными линиями.
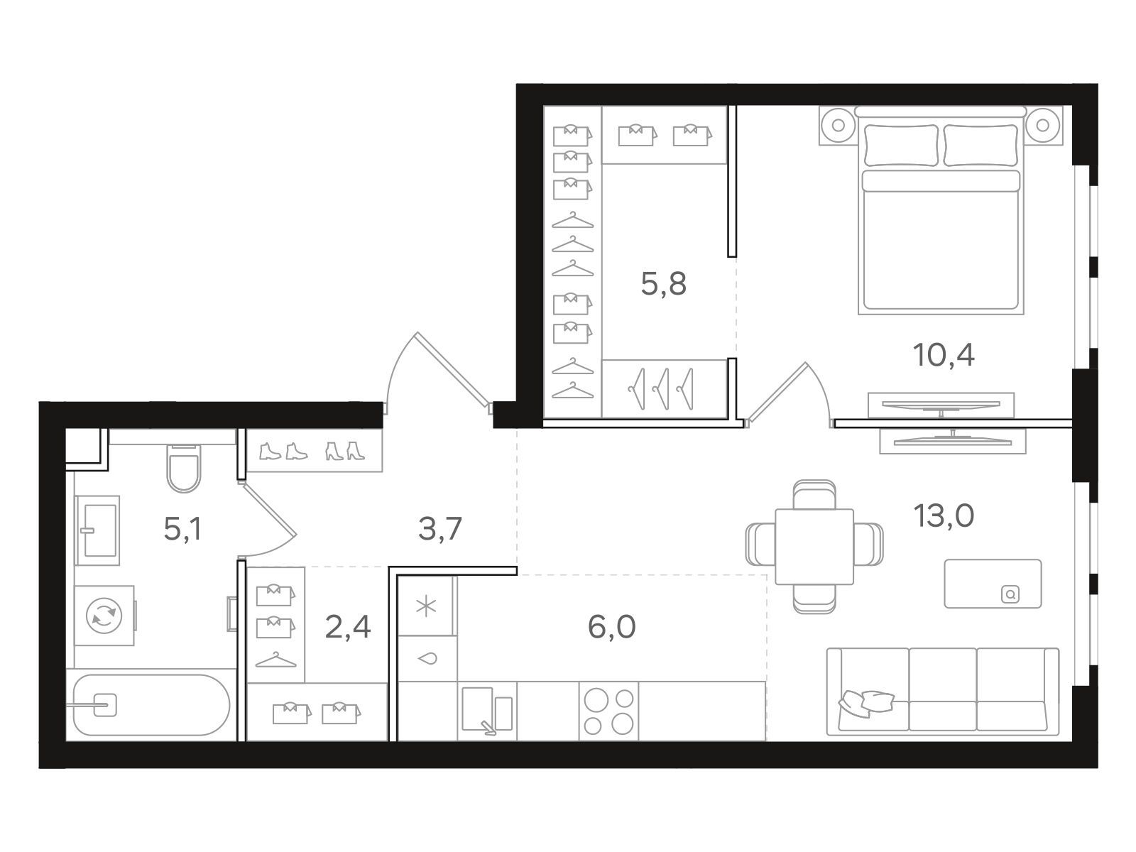
В комплексе представлены разнообразные варианты квартир: от уютных студий до просторных четырехкомнатных. Площади варьируются от 21,4 до 125,5 квадратных метров. В каждой башне можно выбрать квартиру с видом на лесопарк или на городскую панораму с Останкинской телебашней. Функциональные планировки включают большие кухни-гостиные с двумя окнами, спальни с панорамным видом, удобные ванные комнаты более 5 кв.м и гостевые санузлы, а также достаточно мест для хранения в спальнях и коридоре. Как минимум 10% квартир будут предложены с отделкой в формате white box, а основная масса будет без отделки.

Март,2026

Февраль,2026

Январь,2026

Декабрь,2025

Ноябрь,2025

Октябрь,2025

Сентябрь,2025

Август,2025

Июль,2025

Июнь,2025

Май,2025

Апрель,2025

Март,2025

Февраль,2025

Январь,2025
Застройщик

Мангазея
Компания «Мангазея» является частью диверсифицированного холдинга, ведущего деятельность в четырех ключевых направлениях: золотодобыча, девелопмент, газодобыча и IT. На рынке недвижимости Москвы компания успешно работает с 2012 года, постоянно расширяя портфель проектов, общая площадь которых превышает 1,3 миллиона квадратных метров.Многолетний опыт реализации проектов в реальном секторе экономики дает команде «Мангазеи» уникальные компетенции и знания, позволяющие адаптировать лучшие практики из других отраслей для совершенствования девелоперских продуктов. В портфеле компании - проекты, отличающиеся актуальной архитектурой, эргономичными планировками, современной инженерией, нестандартными решениями благоустройства и продуманной инфраструктурой.За время работы «Мангазея» успешно реализовала 5 жилых проектов, заработав репутацию надежного и системного застройщика, неизменно соблюдающего сроки строительства. Среди сданных объектов - клубный дом «Интонация», комплексы «Марьина Роща», «Ты и Я» и «Пикассо». В активной стадии реализации находятся проекты «Мангазея на Речном» и «АУРА», ведется разработка новых перспективных проектов в Богородском и на Красноармейской.
Документы НАЗАРÉ
Проектная декларация от 09.11.2025 г.
Проектная декларация от 09.09.2025 г.
Проектная декларация от 07.08.2025 г.
Проектная декларация от 14.07.2025 г.
Проектная декларация от 11.06.2025 г.
Проектная декларация от 28.05.2025 г.
Проектная декларация от 08.04.2025 г.
Проектная декларация от 17.03.2025 г.
Проектная декларация от 06.02.2025 г.
Проектная декларация от 19.12.2024 г.
Разрешение на строительство
Сдача в I кв. 2029, есть сданные
302 квартиры
Быстрый просмотрОт 11,1 до 32,5 млн ₽
11 054 500 ₽ — 32 454 400 ₽
от 53 015 ₽/мес.
Москва, ВАО, Гольяново
Черкизовская
10 минут
Застройщик «ПИК»
Сдача в I кв. 2029, есть сданные
113 квартир
Быстрый просмотрОт 17,0 до 39,3 млн ₽
17 022 100 ₽ — 39 284 700 ₽
от 81 635 ₽/мес.
Москва, СВАО, Бутырский
Бутырская
3 минуты
Застройщик «ПИК»
Сдача в III кв. 2026, есть сданные
51 квартира
Быстрый просмотрОт 16,7 до 31,7 млн ₽
16 741 600 ₽ — 31 661 500 ₽
от 90 321 ₽/мес.
Москва, СВАО, Отрадное
Владыкино
10 минут
Застройщик «ПИК»
Сдан
11 квартир
Быстрый просмотрОт 18,6 до 43,4 млн ₽
18 631 500 ₽ — 43 404 000 ₽
от 149 300 ₽/мес.
Москва, СВАО, Бабушкинский
Свиблово
8 минут
Застройщик «ПИК»
Сдача в II кв. 2029, есть сданные
299 квартир
Быстрый просмотрОт 19,9 до 64,3 млн ₽
19 872 000 ₽ — 64 326 400 ₽
от 94 294 ₽/мес.
Москва, ЮВАО, Лефортово
Римская
6 минут
Застройщик «Донстрой»
Сдача в IV кв. 2027, строится
286 квартир
Быстрый просмотрОт 9,5 до 53,2 млн ₽
9 486 300 ₽ — 53 222 400 ₽
от 83 965 ₽/мес.
Москва, СВАО, Ярославский
Ростокино
3 минуты
Застройщик «Основа»