Цена за м²
430 000 ₽ - 710 000 ₽
Площадь
25.8 - 120.1 м²
Сдача
есть сданные
140 квартир от застройщика Вэри на Ботанической
Бесплатно подберём новостройку за один звонок
Выгодные акции, льготные ставки и минимальный первоначальный взнос













































































































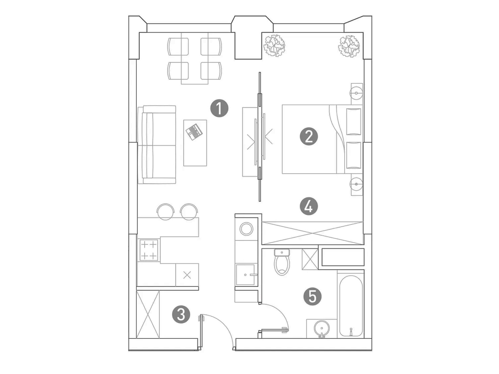
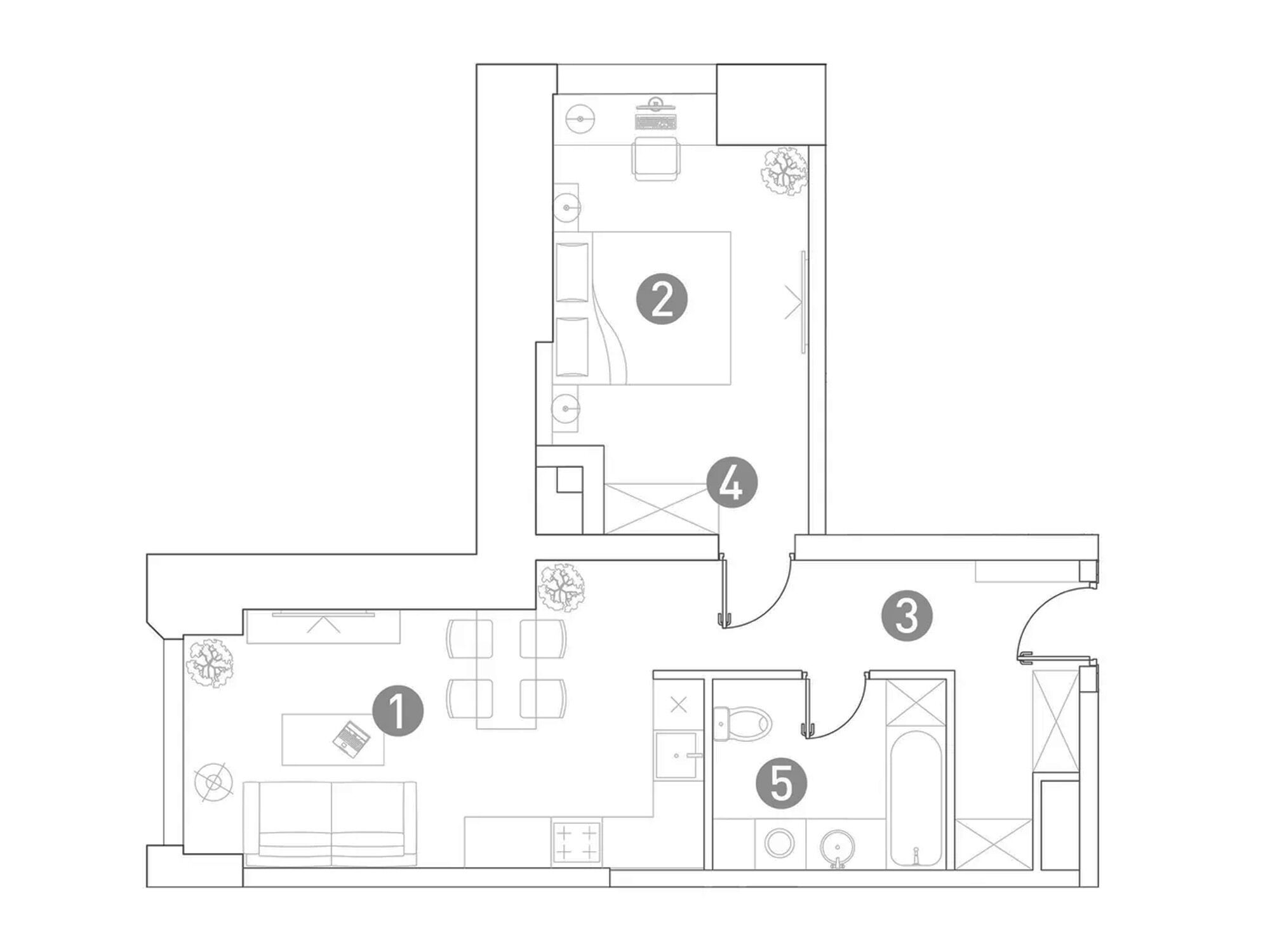
В районе Марфино, в окружении прекрасного Ботанического сада РАН, расположен жилой эко-квартал Вэри. Этот уникальный проект состоит из четырех монолитно-кирпичных корпусов бизнес-класса, каждый из которых имеет 31 этаж.
Всего в квартале представлено 1456 квартир, включая как традиционные планировки, так и уникальные форматы. Здесь можно найти студии, одно-, двух-, трех- и четырехкомнатные квартиры, а также лоты повышенной комфортности с террасами. Площадь квартир варьируется от 23 до 113 квадратных метров, а высота потолков составляет от 2.8 до 3.2 метров.
Особенностью ЖК Вэри является то, что большая часть квартир предлагается в евроформате, что подразумевает отсутствие чистовой отделки. Однако, для удобства жильцов, в каждом корпусе предусмотрены зоны ожидания для посетителей, места для хранения велосипедов и колясок, а также стойки консьержей, которые готовы помочь жильцам в любое время.
Жилой комплекс Вэри — это не просто место для жизни, это уникальная возможность жить в окружении природы и в то же время наслаждаться всеми преимуществами современного комфорта. ЖК Вэри – ваш идеальный выбор для жизни рядом с прекрасным Ботаническим садом.
Любовь
Родители на свадьбу подарили нам однушку в данном жилом комплексе. Мы просто в восторге с мужем от нашего уютного семейного гнездышка. Несказанно рады, очень понравилось что жк располагается рядом с ботаническим садом, что рядом есть все что нужно. Ландшафтный дизайн просто на высоте. Данный ЖК- просто любовь с первого взгляда.
Матвей
На наш взгляд, это идеальное место для создания экологического квартала. Мы рассматриваем возможность покупки квартиры здесь, и на данный момент нам особенно нравится проект Very. Прямо под нашими окнами будет располагаться Ботанический сад, а застройщик обещает создать огромную благоустроенную зеленую территорию.

Февраль,2026

Январь,2026

Декабрь,2025

Ноябрь,2025

Октябрь,2025

Сентябрь,2025

Август,2025

Июль,2025

Июнь,2025

Март,2024

Январь,2024

Декабрь,2023

Ноябрь,2023

Октябрь,2023

Сентябрь,2023

Август,2023

Июль,2023

Июнь,2023

Ноябрь,2021

Октябрь,2021

Сентябрь,2021

Август,2021

Июль,2021

Июнь,2021

Май,2021
Застройщик

Основа

МейнСтрит

Гоголь Парк

Малиново

Мираполис

Эмоушн

Наметкин Тауэр

Эвопарк Измайлово

Эвопарк Сокольники

ФизтехСити

Уно.Соколиная гора
Смотреть все ЖК
«Основа»

Документы Вэри на Ботанической
Проектная декларация от 10.11.2025 г. (корп. 4-5).
Проектная декларация от 09.09.2025 г. (корп. 4-5).
Проектная декларация от 04.07.2025 г. (корп. 4-5).
Проектная декларация от 31.03.2025 г. (корп. 4-5).
Проектная декларация от 10.01.2025 г. (корп. 4-5).
Проектная декларация от 05.11.2024 г. (корп. 4-5).
Проектная декларация от 09.08.2024 г.
Проектная декларация от 27.06.2024 г.
Проектная декларация от 17.05.2024 г. (корп. 4-5).
Разрешение на ввод объекта в эксплуатацию (корп.1,2,3,6)
Проектная декларация от 05.04.2024 г.
Проектная декларация от 29.03.2024 г.
Проектная декларация от 25.01.2024 г.
Проектная декларация от 10.11.2023 г.
Проектная декларация (ред. от 08.09.2023 г.)
Проектная декларация (ред. от 07.04.2022 г.)
Проектная декларация (ред. от 26.03.2021 г.)
Проектная декларация (ред. от 10.03.2022 г.)
Проектная декларация (ред. от 09.12.2021 г.)
Проектная декларация (ред. от 09.09.2021 г.)
Разрешение на строительство (корп.4,5)
Разрешение на строительство
Сдача в II кв. 2027, строится
260 квартир
Быстрый просмотрОт 11,2 до 28,4 млн ₽
11 229 100 ₽ — 28 428 400 ₽
от 53 853 ₽/мес.
Москва, СВАО, Северное Медведково
Медведково
17 минут
Застройщик «ПИК»
Сдача в III кв. 2026, есть сданные
52 квартиры
Быстрый просмотрОт 13,7 до 30,3 млн ₽
13 748 700 ₽ — 30 278 600 ₽
от 65 936 ₽/мес.
Москва, СВАО, Отрадное
Владыкино
10 минут
Застройщик «ПИК»
Сдача в IV кв. 2028, строится
216 квартир
Быстрый просмотрОт 11,6 до 33,0 млн ₽
11 618 000 ₽ — 32 959 800 ₽
от 89 970 ₽/мес.
Москва, САО, Головинский
Водный Стадион
10 минут
Застройщик «ПИК»
Сдача в I кв. 2029, есть сданные
113 квартир
Быстрый просмотрОт 16,1 до 37,8 млн ₽
16 085 900 ₽ — 37 826 700 ₽
от 77 145 ₽/мес.
Москва, СВАО, Бутырский
Бутырская
3 минуты
Застройщик «ПИК»
Сдача в III кв. 2028, строится
145 квартир
Быстрый просмотрОт 15,6 до 46,3 млн ₽
15 617 700 ₽ — 46 349 000 ₽
от 74 900 ₽/мес.
Москва, САО, Войковский
Балтийская
7 минут
Застройщик «Level Group»
Сдача в IV кв. 2027, строится
184 квартиры
Быстрый просмотрОт 14,1 до 46,3 млн ₽
14 065 500 ₽ — 46 313 100 ₽
от 59 031 ₽/мес.
Москва, САО, Восточное Дегунино
Лианозово
15 минут
Застройщик «Plus Development»