Цена за м²
265 000 ₽ - 430 000 ₽
Площадь
37 - 75.8 м²
Сдача
сдан
13 квартир от застройщика Гоголь Парк
Бесплатно подберём новостройку за один звонок
Выгодные акции, льготные ставки и минимальный первоначальный взнос









































ЖК «Гоголь Парк» — это новый жилой комплекс в Люберцах, разработанный группой компаний «Основа». Он предлагает уютное проживание в четырех монолитных корпусах, включая два 25-этажных здания и два корпуса высотой 22-25 этажей. Все входные группы находятся на уровне земли, предоставляя удобный доступ для жителей.
Лобби жилого комплекса «Гоголь Парк» включает в себя зону ожидания для гостей, консьерж-сервис, постаматы и колясочные. Для семей с детьми предусмотрены комнаты для матери и ребенка, а также гостевые санузлы. Также в комплексе имеется двухэтажный детский сад на 75 мест, включающий в себя собственную игровую площадку, чтобы обеспечить комфорт и удобство для детей и их родителей.
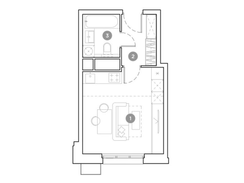
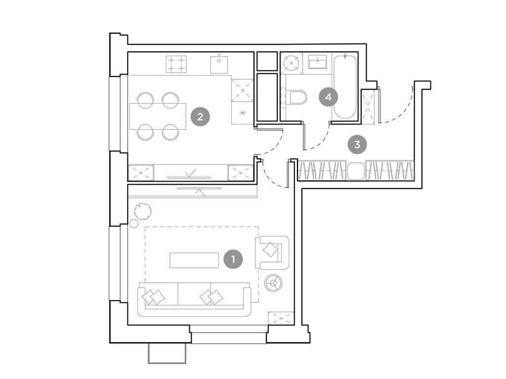
Для удобства жителей жилого комплекса «Гоголь Парк» предусмотрен 5-этажный паркинг на 570 машиномест. Первый этаж паркинга находится под землей и оборудован на 180 мм, а также имеются кладовые помещения. Первые этажи корпусов предназначены для коммерческой инфраструктуры, предлагая различные студии, одно-, двух-, трех- и четырехкомнатные квартиры с площадью от 19,95 до 112,02 квадратных метров. Квартиры могут быть как классическими планировками, так и европланировками без отделки.
ЖК «Гоголь Парк» — это прекрасное место для комфортного и современного проживания в Люберцах. Здесь жильцы могут насладиться всеми удобствами и преимуществами, предлагаемыми современным жилым комплексом. Он предлагает широкий выбор квартир разных планировок, а также удобную инфраструктуру, которая удовлетворит потребности всех жителей. Если вы ищете идеальное место для вашей семьи или инвестиций, ЖК «Гоголь Парк» - это то, что вам нужно.
Алексей
Этот ЖК посоветовали друзья моих родителей, посмотрели на сайте, позвонили менеджеру все распросили, а потом поехали в гости к этим друзьям и были приятно удивленны, очень спокойно, хорошая шумоизоляция, планировка просторные квартиры. гардеробная, высокие потолки, все чисто и аккуратно. Двор прекрасный, и для взрослых и для деток. Закрытая территория и чистая.
Ирина
Хорошее и удобное расположение ЖК, близко к работе, транспортная развязка без проблем, много парковочных мест, только ремонт буду переделывать, под свой вкус. Почитала отзывы на сайте, все устроило.

Июль,2025

Июнь,2025

Май,2025

Февраль,2025

Ноябрь,2024

Октябрь,2024

Август,2024

Июль,2024

Апрель,2024

Январь,2024
Застройщик

Основа
Сдача в IV кв. 2028, есть сданные
594 квартиры
Быстрый просмотрОт 6,5 до 20,3 млн ₽
6 506 700 ₽ — 20 253 800 ₽
от 35 951 ₽/мес.
Московская область, г.о. Котельники, Котельники
Котельники
20 минут
Застройщик «ПИК»
Сдача в I кв. 2028, есть сданные
162 квартиры
Быстрый просмотрОт 7,2 до 17,8 млн ₽
7 183 000 ₽ — 17 771 300 ₽
от 38 176 ₽/мес.
Московская область, г.о. Котельники, Котельники
Котельники
20 минут
Застройщик «ПИК»
Сдан
108 квартир
Быстрый просмотрОт 8,5 до 21,6 млн ₽
8 501 400 ₽ — 21 587 300 ₽
от 40 771 ₽/мес.
Московская область, г.о. Котельники, Котельники
Котельники
18 минут
Застройщик «ПИК»
Сдача в I кв. 2027, есть сданные
342 квартиры
Быстрый просмотрОт 14,5 до 28,9 млн ₽
14 539 800 ₽ — 28 940 700 ₽
от 128 693 ₽/мес.
Москва, ЮВАО, Рязанский
Окская
5 минут
Застройщик «Главстрой-Регионы»
Сдан
12 квартир
Быстрый просмотрОт 31,2 до 40,6 млн ₽
31 215 000 ₽ — 40 565 100 ₽
от 276 287 ₽/мес.
Москва, ЮВАО, Рязанский
Стахановская
5 минут
Застройщик «Трансстройинвест»
60 квартир
Быстрый просмотрОт 6,2 до 15,0 млн ₽
6 162 500 ₽ — 15 023 200 ₽
от 54 545 ₽/мес.
Москва, ВАО, Новокосино
Новокосино
15 минут
Застройщик «Apsis Globe»